Plot of Land - Full Planning Permission - Four Bedroom Detached - Carmarthen (SA33)
Dan Y Bryn, Carmarthen, SA33 4EZ
- 1
Key features
Guide Price: *
£95,000
Fees apply
Buyer's fee:3.60% (min. £6,000)
All fees include VAT at 20%
Auction Type:
† Traditional
Sold for:
£100,000Bid history
1 bidC
10/02/2026 13:07:56 - £100,000
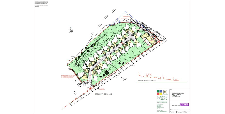
An exciting opportunity to purchase a plot in Llanmiloe with full planning permission. The plot is approximately 642 square meters and boasts an enviable location within Llanmiloe. The planning permission is for a detached house with a lovely L shape kitchen/diner/living room, a utility room study and downstairs WC on the ground floor. The first floor boasts the master bedroom with an en-suite, three further double bedrooms and the main family bathroom. The property benefits from a garage to the front of the property.
The plot can either be a great investment for someone looking to build the property for re-sale or an opportunity to build your own dream home in a popular location.
AGENT NOTE- The plot has mains drainage connections, with electricity and water available in the footpath adjacent.
Situated on the edge of the Carmarthenshire, Pembrokeshire border in West Wales, Pendine boasts a 7 mile beach stretching from Gilmore Point to Laugharne Sands where Malcolm Campbell and J.G. Parry-Thomas set the world land speed record five times between 1924 and 1927. The beach stretches for seven miles, and is well worth the visit.
GENERAL INFORMATION
VIEWING: By appointment only via the Agents.
TENURE: We are advised Freehold
SERVICES: We have not checked or tested any of the services or appliances at the property.
TAX: Band NA
Auction Details
The lot is to be sold by traditional online auction with an end date and time of TBC.
An auction buyer’s fee of 3.6% (inc of VAT) subject to a minimum fee of £6,000 (inc of VAT) is payable in addition to the purchase price.
The auction will be exclusively available online via the Rocket Auctions website including the legal pack information.
The registration process is extremely simple and free. Please visit the Rocket Auctions website, and click on the 'register' button (or login - if you have already registered).
Stage 1) Register your email address, create a password and confirm your account.
Stage 2) View the legal pack and arrange any viewings
Stage 3) If you would like to bid, use the 'dashboard' button and complete your ID check and enter your payment and solicitors details
Stage 4) You are ready to bid - Good Luck!
No deposit monies are required before you bid.Guide price(s) are an indication of the seller's expectation. Reserve price(s) are a figure below which the auctioneer cannot sell the lot at auction. The reserve price is not disclosed and remains confidential between the seller and the auctioneer and is set within the guide range.
A legal pack and special conditions are available to download to anyone who has registered. It is the purchaser's responsibility to make all necessary legal and financial enquiries prior to placing any bids.
The complete legal pack would need to be inspected before an offer would be considered.
Please get in touch if you have any questions regarding Online auctions or would like to arrange a viewing.
An exciting opportunity to purchase a plot in Llanmiloe with full planning permission. The plot is approximately 642 square meters and boasts an enviable location within Llanmiloe. The planning permission is for a detached house with a lovely L shape kitchen/diner/living room, a utility room study and downstairs WC on the ground floor. The first floor boasts the master bedroom with an en-suite, three further double bedrooms and the main family bathroom. The property benefits from a garage to the front of the property.
The plot can either be a great investment for someone looking to build the property for re-sale or an opportunity to build your own dream home in a popular location.
AGENT NOTE- The plot has mains drainage connections, with electricity and water available in the footpath adjacent.
Situated on the edge of the Carmarthenshire, Pembrokeshire border in West Wales, Pendine boasts a 7 mile beach stretching from Gilmore Point to Laugharne Sands where Malcolm Campbell and J.G. Parry-Thomas set the world land speed record five times between 1924 and 1927. The beach stretches for seven miles, and is well worth the visit.
GENERAL INFORMATION
VIEWING: By appointment only via the Agents.
TENURE: We are advised Freehold
SERVICES: We have not checked or tested any of the services or appliances at the property.
TAX: Band NA
Auction Details
The lot is to be sold by traditional online auction with an end date and time of TBC.
An auction buyer’s fee of 3.6% (inc of VAT) subject to a minimum fee of £6,000 (inc of VAT) is payable in addition to the purchase price.
The auction will be exclusively available online via the Rocket Auctions website including the legal pack information.
The registration process is extremely simple and free. Please visit the Rocket Auctions website, and click on the 'register' button (or login - if you have already registered).
Stage 1) Register your email address, create a password and confirm your account.
Stage 2) View the legal pack and arrange any viewings
Stage 3) If you would like to bid, use the 'dashboard' button and complete your ID check and enter your payment and solicitors details
Stage 4) You are ready to bid - Good Luck!
No deposit monies are required before you bid.Guide price(s) are an indication of the seller's expectation. Reserve price(s) are a figure below which the auctioneer cannot sell the lot at auction. The reserve price is not disclosed and remains confidential between the seller and the auctioneer and is set within the guide range.
A legal pack and special conditions are available to download to anyone who has registered. It is the purchaser's responsibility to make all necessary legal and financial enquiries prior to placing any bids.
The complete legal pack would need to be inspected before an offer would be considered.
Please get in touch if you have any questions regarding Online auctions or would like to arrange a viewing.
Summary
- Auction end
- 10th Feb at 13:15
- Property type
- Land
- Tenure
- Freehold
- Council tax band
- Ask Agent
Guide Price: *
£95,000
Fees apply
Buyer's fee:3.60% (min. £6,000)
All fees include VAT at 20%
Auction Type:
† Traditional
Sold for:
£100,000Bid history
1 bidC
10/02/2026 13:07:56 - £100,000
Summary
- Auction end
- 10th Feb at 13:15
- Property type
- Land
- Tenure
- Freehold
- Council tax band
- Ask Agent
This property is being sold by:

Rocket Auctions
02081642892
†Traditional auction
Exchange occurs at the end of the auction. This means that if the reserve is met or exceeded and the auction timer reaches zero, the successful bidder is legally obliged to pay the purchase price and the seller will be legally obliged to sell the property. To ensure that the successful bidder proceeds, the buyer is automatically charged a holding deposit, which is held in a secure client account, pursuant to the terms of a holding deposit agreement.
* Pricing Information
The Guide Price amount specified is an indication of each seller's minimum expectation. It is not necessarily the amount at which the property will sell. Each property will be offered subject to a Reserve (a figure below which the property will not be sold) which we expect will be set no more than 10% above the Guide Price amount.
Bamboo Proptech and Rocket Auctions shall not be liable for any inaccuracies in the fees stated on this description page, in the bidding confirmation pop up or in the particulars. Buyers should check the contents of the legal pack and special conditions for accurate information on fees. Where there is a conflict between the fees stated in the particulars, the bid information box above or the bidding confirmation pop up and the contents of the legal pack, the contents of the legal pack shall prevail.
Stamp Duty Land Tax or Land and Buildings Transaction Tax may also apply in some circumstances.
Refreshing the Page
To make sure that you are seeing the latest information for the property, we recommend you refresh the page. This ensures you're seeing live information and not stored (cached) data. If the page disconnects from the Internet, refreshing the page will show the latest information.
Disclaimer
All information relating to this property, including descriptions, pictures and other related information has been provided by Rocket Auctions. All legal documents in relation to this property have been provided by the Vendor's solicitor. Neither Bamboo Proptech or any individual in employment with Bamboo Proptech makes any warranty as to the accuracy or completeness of any of the property information.
These particulars do not form part of any contract or offer. Buyers should not rely on them as statements of representation and should check that the information is correct by inspection or otherwise. Where there is a conflict between the contents of the legal documents and these particulars, the information contained in the legal documents shall prevail.
Pursuant to the Auctioneer Act 1845, this auction is being conducted by the auctioneer stated above. All participants in this online auction shall note that both the Auctions (Bidding Agreements) Act 1927 and 1969 shall apply.
Where stated in the bid box above, you agree that Bamboo may pre-authorise your card for the amount of the Buyer's fee and Deposit. You will only be charged if you are the winning buyer. We will release the pre-authorisation at the end of the auction. You card issuer may take up to 10 working days for this amount to be available to you in your account.


