Flat 1, 57 Victoria Road, Torquay TQ1 1HX
Victoria Road, Torquay, TQ1 1HX
- 8
Key features
Guide Price: *
£75,000
Fees apply
Buyer's fee:3.6% (min. £6,000)
All fees include VAT at 20%
Holding Deposit: *£1,400
*Only charged if you are the successful buyer and goes towards the purchase price
Auction Type:
† Traditional
Opening bid:
£78,000Bid history
0 bidsThis lot is to be sold in auction on Wednesday 17th April at 4pm
Large 3 bedroom flat in town centre location within easy walking distance of the seafront and ideal for holiday lets, a 2nd home, first-time buy or residential investment.
Situation & Description
Torquay is a popular coastal down on the south Devon coast offering a wide variety of leisure and shopping facilities as well as excellent choice of bars, restaurants and cafes.
There are a good selection of primary and secondary schools in the town with Union Square Shopping Centre a short distance away as well as Torquay beach and harbour.
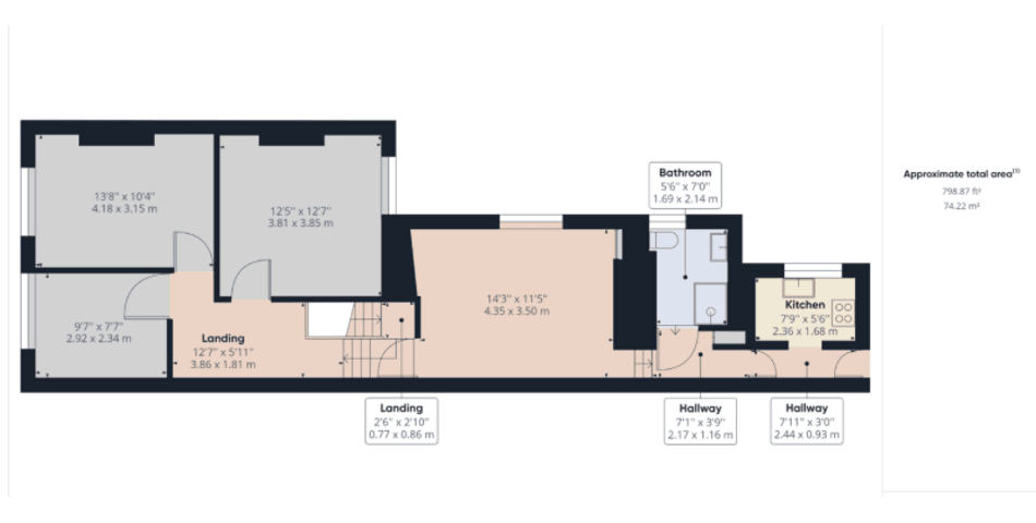
The flat is in good decorative order and offers large, flexible accommodation with split level giving an air of space and in all, extends to c.800sqft.
Ground Floor – Living Room, 3 x Bedrooms, Kitchen and Bathroom
Outside there is a terrace and courtyard garden.
The flat is held on a long leasehold with share of the freehold (full details will be contained within the legal pack)
Viewings
For access, please contact Rocket Auctions.
Auctioneer's Notes
If you are interested in making a pre-auction offer, please contact us and we will speak with the vendors.
If you require auction or bridging finance or are concerned about the completion timescales, speak with one of our team.
Auction Details
This lot is to be sold in auction on Wednesday 17th April at 4pm
Please note that a Buyer’s Premium of 3.6% (inc.of VAT) of the purchase price is to be paid by the successful Buyer subject to a minimum fee of £6,000 (inc.of VAT)
This lot is to be sold in auction on Wednesday 17th April at 4pm
Large 3 bedroom flat in town centre location within easy walking distance of the seafront and ideal for holiday lets, a 2nd home, first-time buy or residential investment.
Situation & Description
Torquay is a popular coastal down on the south Devon coast offering a wide variety of leisure and shopping facilities as well as excellent choice of bars, restaurants and cafes.
There are a good selection of primary and secondary schools in the town with Union Square Shopping Centre a short distance away as well as Torquay beach and harbour.
The flat is in good decorative order and offers large, flexible accommodation with split level giving an air of space and in all, extends to c.800sqft.
Ground Floor – Living Room, 3 x Bedrooms, Kitchen and Bathroom
Outside there is a terrace and courtyard garden.
The flat is held on a long leasehold with share of the freehold (full details will be contained within the legal pack)
Viewings
For access, please contact Rocket Auctions.
Auctioneer's Notes
If you are interested in making a pre-auction offer, please contact us and we will speak with the vendors.
If you require auction or bridging finance or are concerned about the completion timescales, speak with one of our team.
Auction Details
This lot is to be sold in auction on Wednesday 17th April at 4pm
Please note that a Buyer’s Premium of 3.6% (inc.of VAT) of the purchase price is to be paid by the successful Buyer subject to a minimum fee of £6,000 (inc.of VAT)
Summary
- Auction end
- 19th Apr at 18:30
- Property type
- Residential
- Tenure
- Share of Freehold
- Bedrooms
- 3
- Bathrooms
- 1
- Council tax band
- Ask Agent
Guide Price: *
£75,000
Fees apply
Buyer's fee:3.6% (min. £6,000)
All fees include VAT at 20%
Holding Deposit: *£1,400
*Only charged if you are the successful buyer and goes towards the purchase price
Auction Type:
† Traditional
Opening bid:
£78,000Bid history
0 bidsSummary
- Auction end
- 19th Apr at 18:30
- Property type
- Residential
- Tenure
- Share of Freehold
- Bedrooms
- 3
- Bathrooms
- 1
- Council tax band
- Ask Agent
This property is being sold by:

Rocket Auctions
02081642892
†Traditional auction
Exchange occurs at the end of the auction. This means that if the reserve is met or exceeded and the auction timer reaches zero, the successful bidder is legally obliged to pay the purchase price and the seller will be legally obliged to sell the property. To ensure that the successful bidder proceeds, the buyer is automatically charged a holding deposit, which is held in a secure client account, pursuant to the terms of a holding deposit agreement.
* Pricing Information
The Guide Price amount specified is an indication of each seller's minimum expectation. It is not necessarily the amount at which the property will sell. Each property will be offered subject to a Reserve (a figure below which the property will not be sold) which we expect will be set no more than 10% above the Guide Price amount.
Bamboo Proptech and Rocket Auctions shall not be liable for any inaccuracies in the fees stated on this description page, in the bidding confirmation pop up or in the particulars. Buyers should check the contents of the legal pack and special conditions for accurate information on fees. Where there is a conflict between the fees stated in the particulars, the bid information box above or the bidding confirmation pop up and the contents of the legal pack, the contents of the legal pack shall prevail.
Stamp Duty Land Tax or Land and Buildings Transaction Tax may also apply in some circumstances.
Refreshing the Page
To make sure that you are seeing the latest information for the property, we recommend you refresh the page. This ensures you're seeing live information and not stored (cached) data. If the page disconnects from the Internet, refreshing the page will show the latest information.
Disclaimer
All information relating to this property, including descriptions, pictures and other related information has been provided by Rocket Auctions. All legal documents in relation to this property have been provided by the Vendor's solicitor. Neither Bamboo Proptech or any individual in employment with Bamboo Proptech makes any warranty as to the accuracy or completeness of any of the property information.
These particulars do not form part of any contract or offer. Buyers should not rely on them as statements of representation and should check that the information is correct by inspection or otherwise. Where there is a conflict between the contents of the legal documents and these particulars, the information contained in the legal documents shall prevail.